R2A - Renaud Alardin Architecte

Maison médicale MONTESSUY

Mission complète

Nature de l’opération :
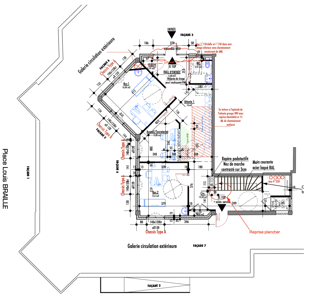
Restructuration d’un ancien bar-tabac afin d’accueillir une maison de santé pluridisciplinaire.

Programme :
Transformation complète d’un immeuble existant, implanté au cœur d’un ensemble collectif, afin d’y développer une offre de soins de proximité destinée aux habitants du quartier.

Le projet comprend :

  • un espace d’accueil et d’attente pour les patients ;
  • deux bureaux infirmiers ;
  • 4 bureaux de consultation médicale ;
  • un cabinet de kinésithérapie ;
  • des locaux administratifs.

Le bâtiment, organisé sur deux niveaux, a fait l’objet d’une restructuration complète intégrant la mise en accessibilité PMR et la mise en conformité aux normes de sécurité applicables aux établissements recevant du public.

Particularité :
Réalisation des études et des travaux durant la période de la pandémie de Covid-19, nécessitant une adaptation des méthodes de travail et du suivi de chantier.

  • Programme : maison de santé pluridisciplinaire
  • Surface : 240 m²
  • Budget : 327 060,47€ HT
  • Avancement : fev 2021
  • Mission : Mission complète
  • Lieu : 69300 Caluire et cuire
  • Maitrise d'ouvrage
    carré d'or
    carré d'or
  • +
  • Maitrise d'oeuvre
    Logo R2A
    R2A